Rekonstrukce bytu Morava

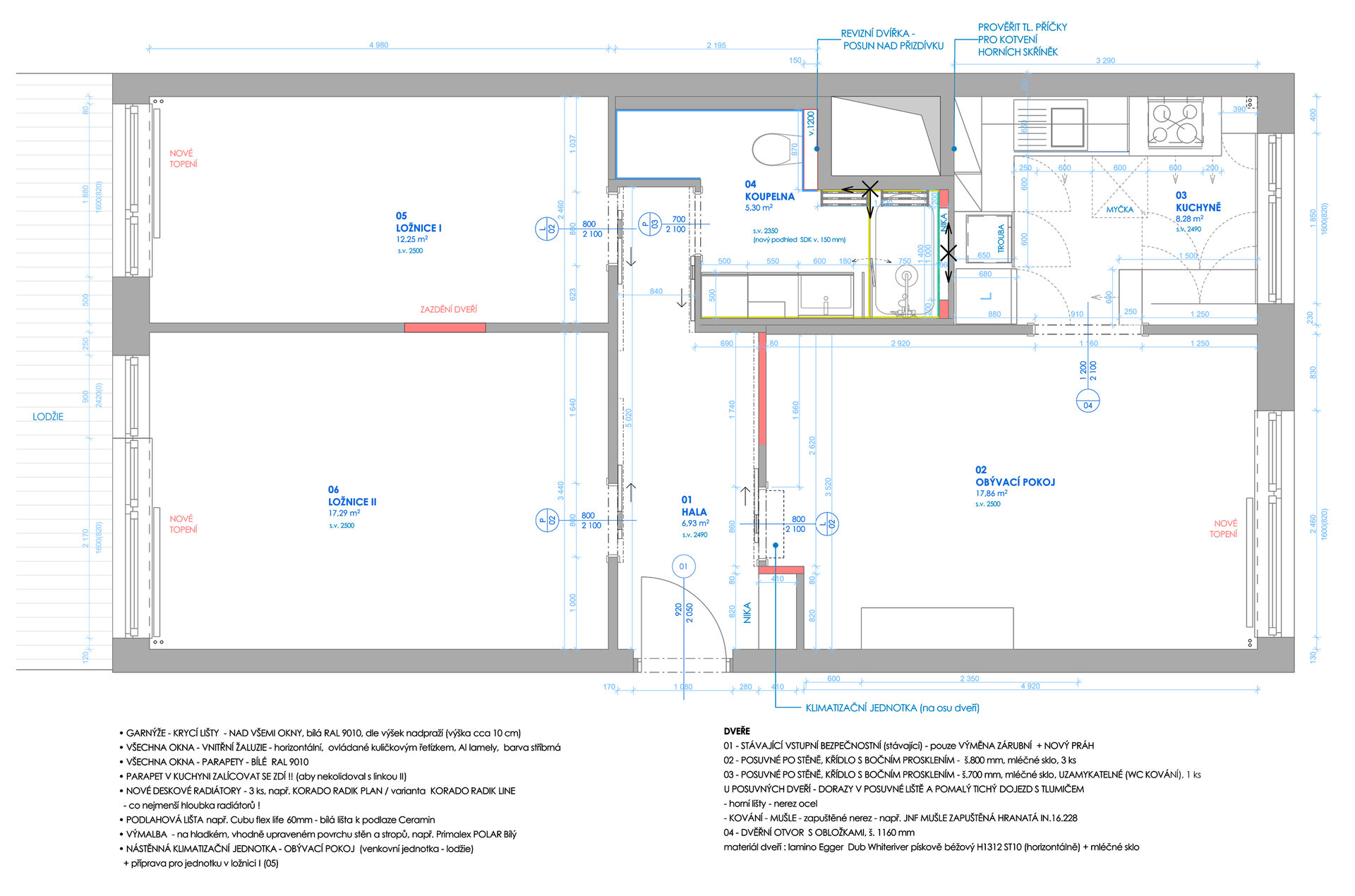
Kompletní rekonstrukce bytu v panelovém domě byla navržena s maximálním využitím prostoru pro potřeby 6-členné rodiny.

Byt prošel kompletní úpravou, včetně nových podlah, dveří, nábytku, svítidel, podhledů, elektroinstalace, klimatizace, otopných těles, sanity, dlažby a obkladů. Podrobně byly zpracovány i veškeré výkresy nábytku pro truhlářskou výrobu. Nábytek na míru byl navržen především pro maximální využití úložných prostor.

Dispozice bytu byla účelně upravena tak, aby v obývacím pokoji mohla být velká rozkládací pohovka s možností každodenního přespání manželů a jídelní stůl pro 6 osob.

Kuchyňský kout, rozdělený na dvě samostatné části, vyniká jak funkčností, tak estetickým zpracováním.

Koupelna byla vybavena novými zařizovacími předměty a úložným nábytkem. Dlažba byla vybrána tak, aby ladila s vinylovou podlahou v ostatních místnostech bytu. Obklad ve stejné barvě doplňuje matně tyrkysová stěna s nikou za vanou, která dodává koupelně příjemný akcent.

V chodbě je navržena skříň s posuvnými dveřmi na celou výšku místnosti a u vstupu skříňka s lavicí v nice.
Dětské pokoje byly z hlediska vybavení řešeny pouze okrajově. Klienti zde chtěli využít převážně stávající nábytek.

realizace 2021