Rekonstrukce chaty a ateliér

Tento projekt citlivě propojuje historii s moderním bydlením a přirozeně reaguje na svažitý terén.

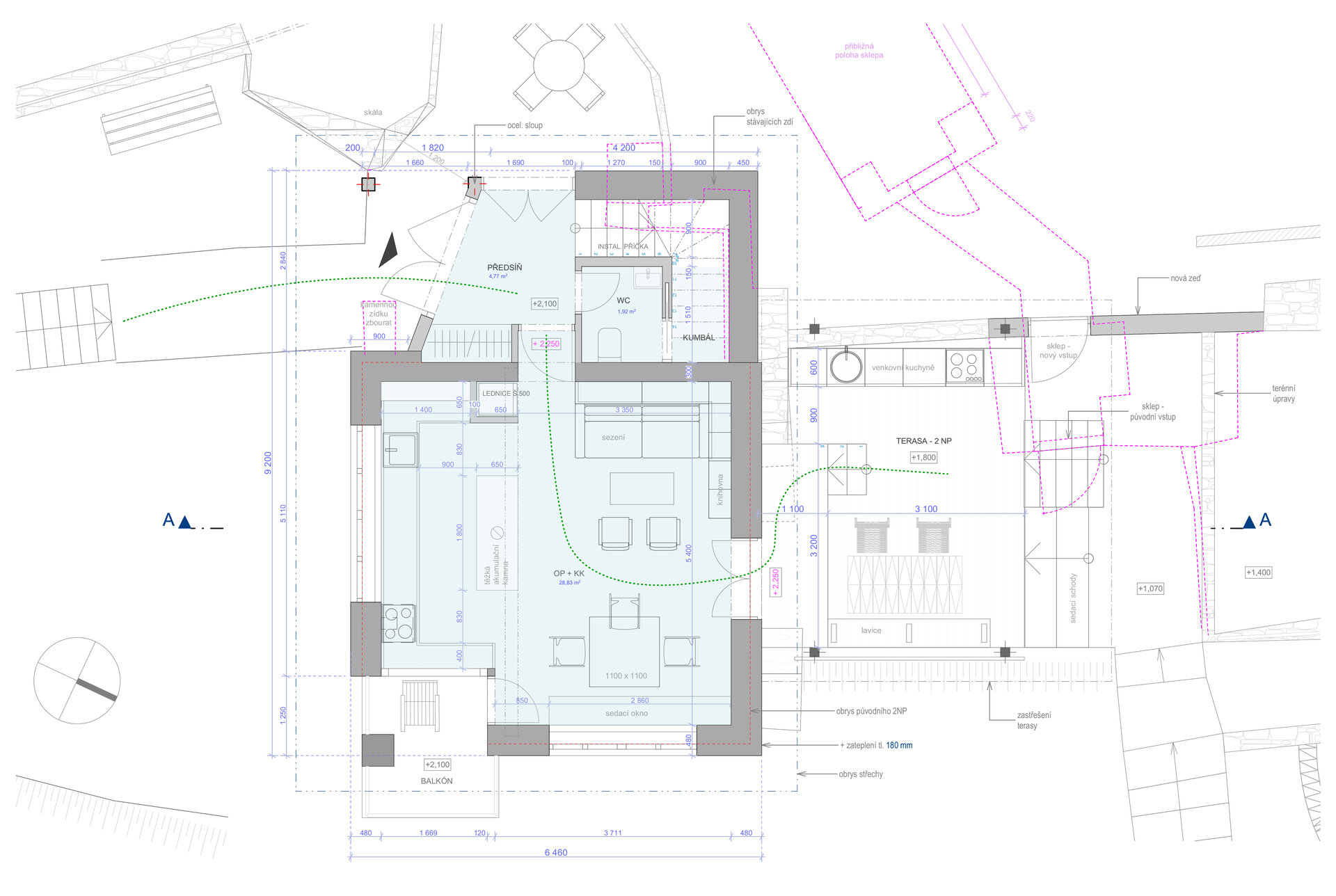
Původní chata je transformována na komfortní dům pro trvalé bydlení. Architektonické řešení pracuje s přírodními materiály – kamenem, dřevem a sklem – které spojují tradici s nadčasovým designem.
Venkovní obytný prostor se rozšiřuje o zastřešenou terasu s kuchyní a posezením, který podporuje celoroční využití exteriéru.

Vedlejší objekt, původně stará kovárna, se promění v umělecký ateliér. Jeho rekonstrukce zachovává historické kamenné zdivo, ke kterému se přidá lehká dřevěná nástavba s velkorysým prosklením. Přirozené světlo a otevřené výhledy vytvoří inspirativní prostředí pro tvůrčí práci.

Celý areál je zasazen do bujné zahrady, která plynule přechází od upraveného prostoru k volné přírodě.
Propojení architektury s okolním prostředím vytváří jedinečnou atmosféru pro život i tvorbu.

Návrh ve spolupráci s Ing. arch. Petr Hájek
https://www.atelierhajek.com/