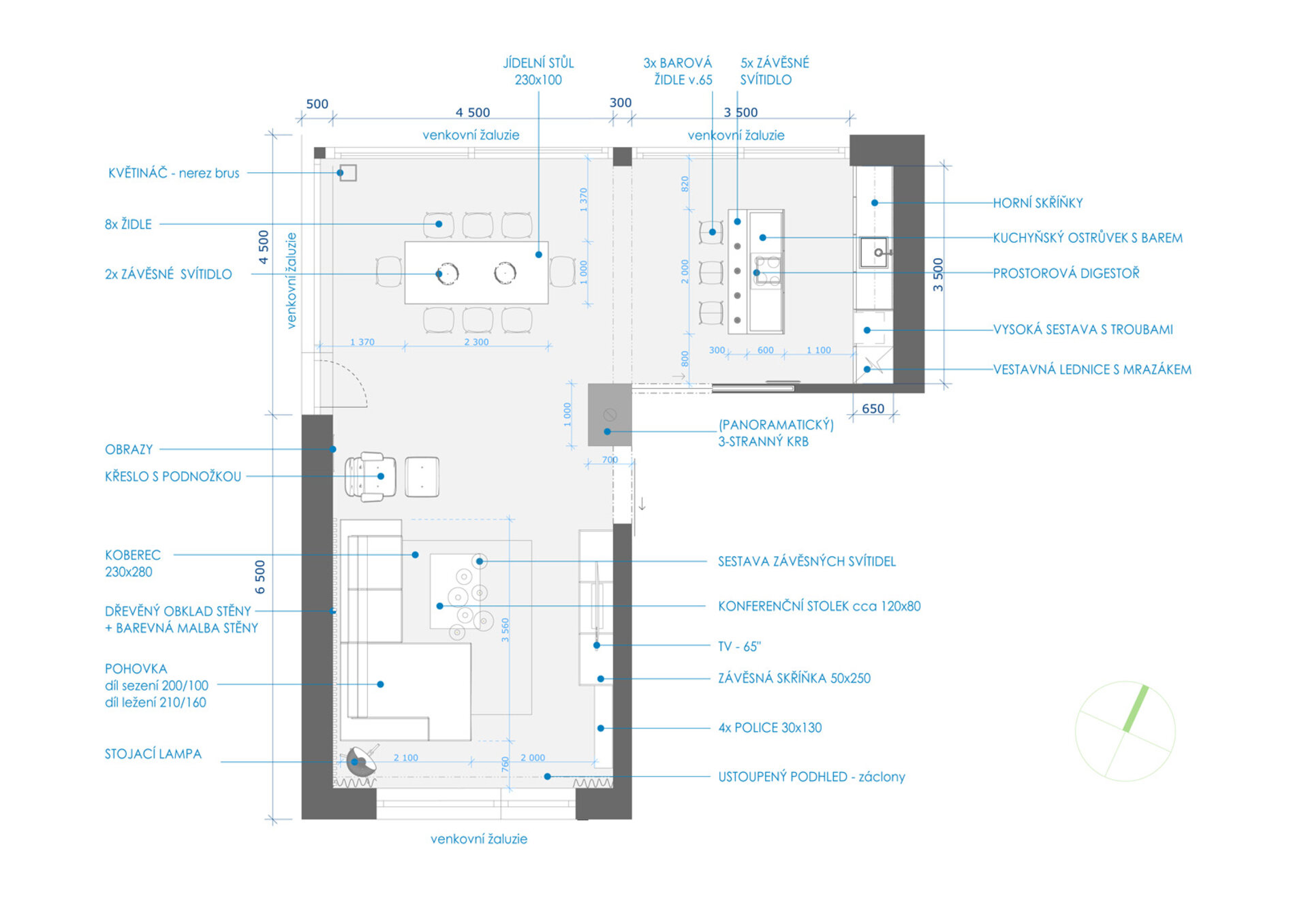
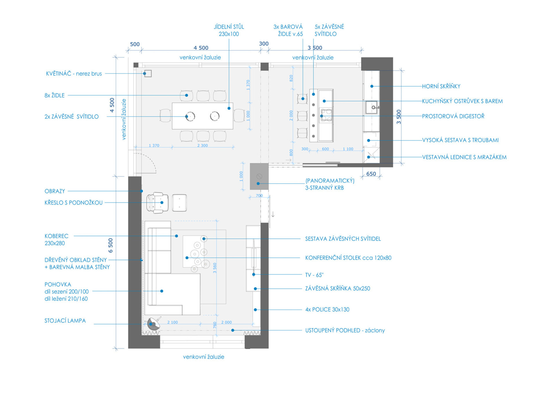
Interiér obytného prostoru s KK

Cílem bylo vytvořit interiér s funkčně rozdělenými zónami, laděný do elegantních chladných tónů, s prvky industriálního stylu a zlatými akcenty.

1/ V obývací části za velkou pohovkou dominuje vertikální laťování ze dřeva wenge na stěně v barvě taupe. Naproti pohovce je závěsná skříňka pod TV a minimalistické police z nerez plechu. Vedle pohovky je umístěno pohodlné křeslo s podnožkou přímo naproti centrálnímu třístranně prosklenému krbu. V prostoru zaujme designová stojací lampa se stínidlem ve tvaru zlatočerné polokoule, ale i koberec s geometrickým vzorem.

2/ Jídelní část v proskleném rohu místnosti nabízí výhled do zahrady. Stůl pro 6-8 osob má desku z drásaného dubu a černou kovovou podnož. Židle s jemně členitou podnoží jsou v bílé barvě, zatímco svítidla nad stolem opět přitahují pozornost zlatým detailem.

3/ Otevřený kuchyňský kout tvoří vestavěná linka a samostatný ostrůvek s barovým posezením. Kuchyňská linka je v tmavě šedé matné barvě, kombinované s dubem a pastelově tyrkysovým Lacobelem. Nad ostrůvkem je umístěna minimalistická digestoř a řada žárovek. Zlatý akcent zde tvoří ručičky od nástěnných hodin.

Nábytek, svítidla a dekorace pocházejí z exkluzivních i běžně dostupných obchodů. Kuchyňská linka a skříňka pod TV s policemi jsou navrženy k výrobě na míru. Na podlaze je litá vysokopevnostní betonová stěrka.