Dětský pokoj pro 2 sestry

Návrh dětského pokoje vznikl s cílem vytvořit harmonický prostor pro dvě malé dívky – místo, které spojuje spánek, hraní, učení i ukládání věcí v chytrém a nadčasovém řešení.

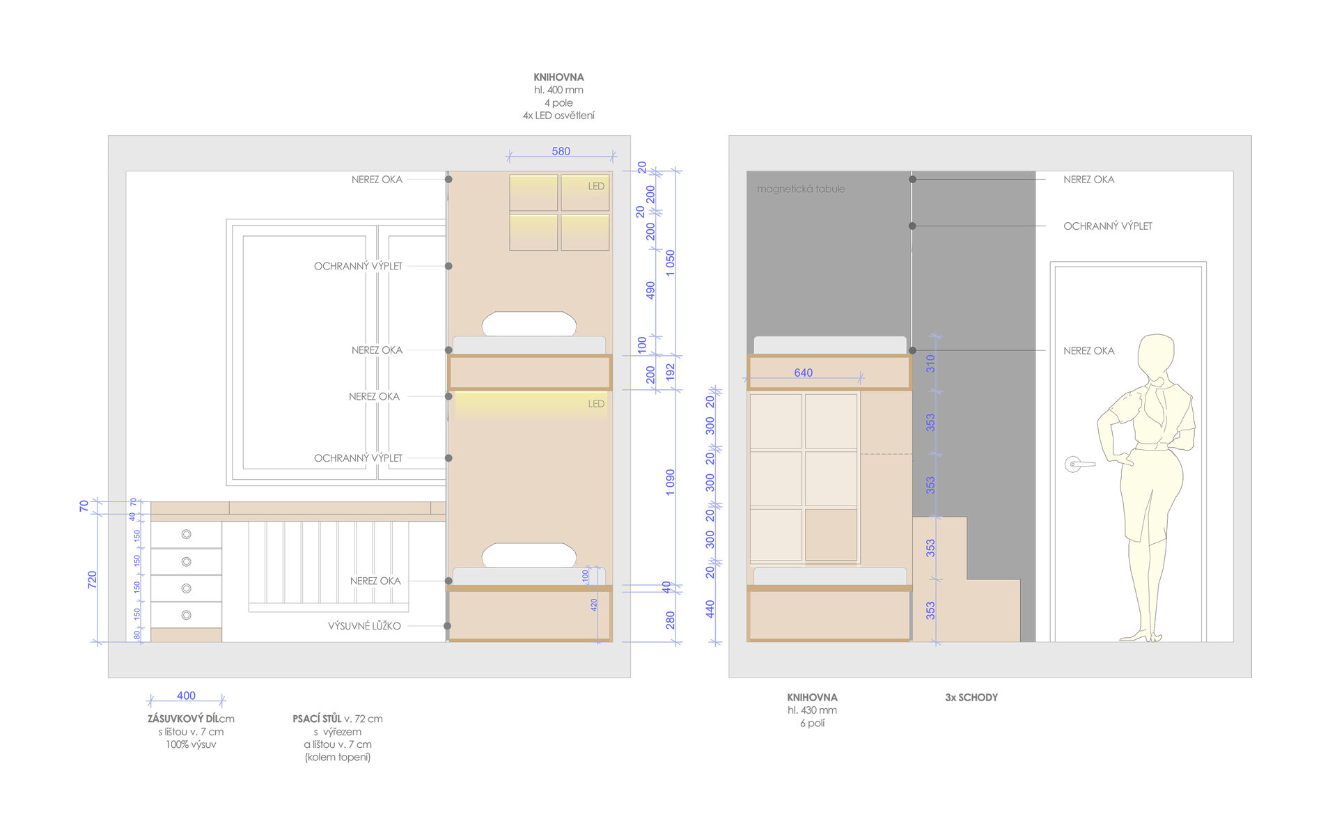
Dominantou pokoje je patrová postel na míru, která elegantně kombinuje tři lůžka – horní, spodní a výsuvnou přistýlku. Bezpečnost a hravý prvek přináší lehký ochranný výplet z elastických lan, který působí vzdušně. Stěna za lůžky je oživena tapetou s tropickými ptáky, která prostoru dodává barevnost a radost.

Prostorově úsporné schody s úložným prostorem slouží nejen jako přístup na horní postel, ale i jako zásuvky a knihovničky. Každý prvek má svou funkci a vše je propojeno v jednotném materiálovém řešení – kombinace bílého lamina a přírodního dubu vytváří příjemnou, světlou atmosféru.

Praktický psací stůl pod oknem nabízí dostatek místa pro domácí úkoly i tvoření, doplněný otevřenými policemi s LED osvětlením. Nechybí ani prostorná třídílná šatní skříň, která zajišťuje dostatek úložného prostoru.

Prostor u vstupu oživuje magnetická stěna, kde si děti mohou kreslit, psát vzkazy nebo vystavovat své výtvory.

Tento pokoj je ukázkou toho, že i menší prostor může být plně funkční, estetický a přizpůsobený dětskému světu – s důrazem na detail, praktičnost a lehkost.

Realizace : Truhlářství LEMBERK