Andante

Areál Andante je klidným ostrovem na pomezí vesnice a krajiny. Soubor tří domů , volně rozložených v zahradě, má sloužit nejen k bydlení, ale i jako prostor pro práci, setkávání a semináře osobního rozvoje.
Architektura se tu nevnucuje – je prostá, má lidské měřítko a je přirozenou a harmonickou součástí zahrady.

Zahradní altán
Kruhový objekt určený pro setkávání i meditaci. Stavba bez začátku a konce - prostor soustředění a ticha.
Dřevěná konstrukce střechy je řešena jako reciproční krov – soustava trámků, které se navzájem podpírají v dokonalé rovnováze.
Světlo vstupuje dovnitř velkorysými okny, prosklenými dveřmi i kruhovým světlíkem a s každou hodinou dne proměňuje atmosféru prostoru.

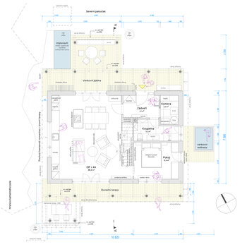
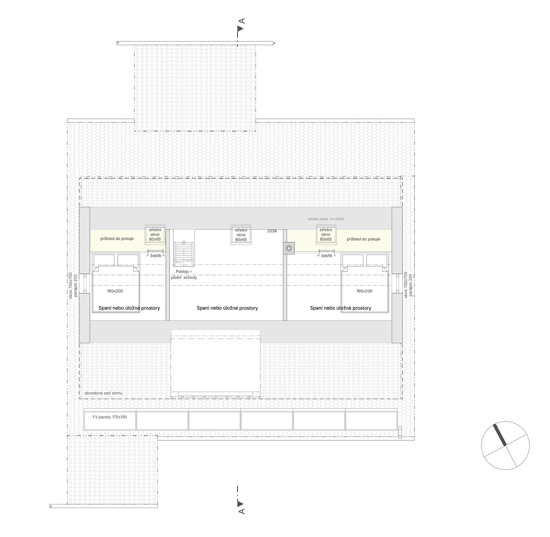
Rodinný dům
Hlavní obytný dům je dvoupodlažní, s bohatě využitým obytným podkrovím pod sedlovou střechou.
V přízemí se otevřený obytný prostor přirozeně propojuje s krytými terasami a zahradou, zatímco horní podlaží nabízí klidné zázemí pro spánek i práci.

Vejminek
Nejmenší z trojice domů stojí lehce stranou a zachovává si vlastní soukromí. Může sloužit jako dům pro hosty, starší generaci, místo pro tvorbu i odpočinek…

Návrh ve spolupráci s Ing. arch. Petr Hájek
https://www.atelierhajek.com/