Rekonstrukce bytu Med

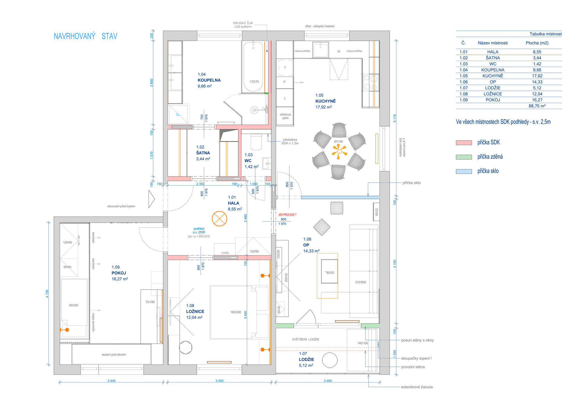
Návrh komplexní rekonstrukce bytu, kde je dipozice 4+1 změněna na velkorysejší 3+1, která prostorově lépe vyhovuje klientům. Mezi obývacím pokojem a kuchyní je navržena prosklená příčka z kouřového skla s možností úplného optického oddělení místností. Byt je v navržen v moderním nadčasovém barevném a materiálovém pojetí. Velká pozornost byla věnována také pokoji pro dospívajícího syna.