ARCH
ELL
ÚVOD
PROJEKTY
SLUŽBY
O MNĚ
KONTAKT
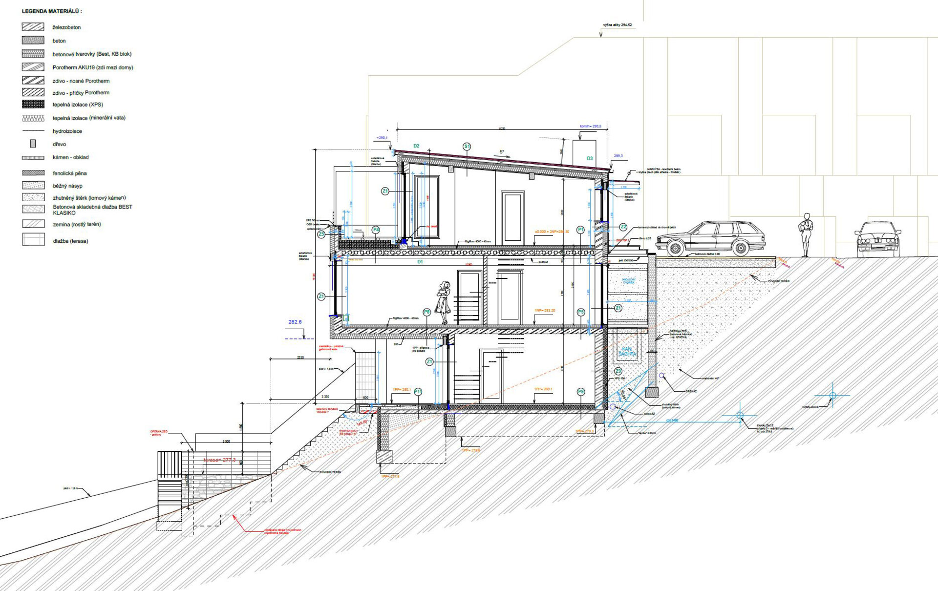
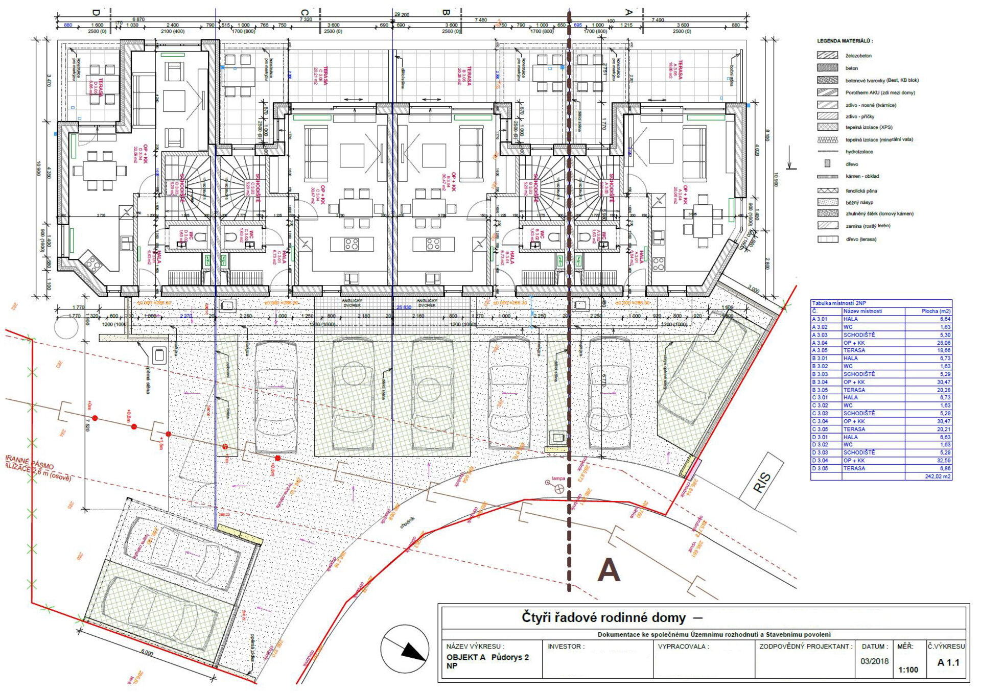
Různé - architektura
Ukázky z projektů, které vznikly v rámci ateliéru : https://www.hanspaul.cz/
Jedná se například o :
vily a rodinné domy
bytové domy
pavilony
zákresy do fotografií
výkresy k dokumentaci pro územní rozhodnutí a stavební povolení